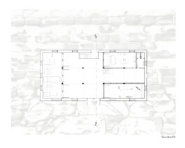
landin / eine neue dorfmitte
uckermark, 2021
An architectural and socio-cultural study of the rural landscape in southeastern Uckermark – proposing a step-by-step revitalization of the village center and the development of a community-shared town hall.






















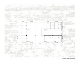
landin / eine neue dorfmitte
uckermark, 2021
An architectural and socio-cultural study of the rural landscape in southeastern Uckermark – proposing a step-by-step revitalization of the village center and the development of a community-shared town hall.





















